


Código da candidatura: 61572
Programa de Financiamento: Investimento RE-C02-i01 Programa de Apoio ao Acesso à Habitação - 1º Direito
Objetivo: Aquisição de 1 imóvel devoluto e posterior reabilitação integral, para promover o alojamento a agregados em condições indignas de habitação, elegíveis ao abrigo do Decreto-lei 37/2028 de 4 junho.
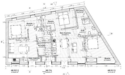
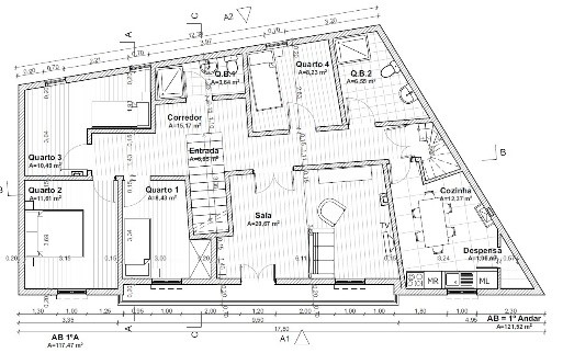
Nº de Fogos: 3 (1 T1, 1 T2 e 1 T3)
Valor da candidatura: 344.050,44 €
Data Prevista de Conclusão: junho 2026


